× 微信二维码
宠物之家

2018/05/09     作者:华都设计

项目背景

项目位于上海浦东,是一个90年代典型上海老公房的底层,拥有一切上海”老旧小“的典型特点。业主除了母子二人外,还有40只猫和2只狗,大家共同拥挤的居住在这个48㎡的底层空间里,整个空间中充满着笼子,人类的空间被极限的积压,这也造成了母子之间矛盾的产生。同时由于人宠的高密度混居,光线昏暗,各种气味混杂在一起,使得空气质量非常差,卫生情况非常难堪。

▲项目坐落于典型上盖公寓底层 ©苏圣亮

薛定谔:人与宠物连接与分开的叠加态

在高密度的人宠混居状态下,人与宠物的关系是整体设计的重点,首先是对整体功能分区的重新梳理,人类的空间与宠物的空间相互咬合,形成了阴阳的2个空间体系。客厅,次卧和主卧形成人居住的空间,走廊加上院子中的2个小屋形成宠物的空间。两个空间相互咬合渗透。

▲功能分区

同时宠物与人类的共生关系体现为互相需要的关系,宠物向人类提供温情和陪伴用以换取人类的食物和居住空间。宠物数量众多的时候,如果自由的散养,则人宠混居转变为互相争夺空间的战争。如果转为监狱式隔离养殖,则失去了原有宠物与人类互动的平等性。因此本方案中的宠物与人时时刻刻处于连接与分割的叠加状态。通过一个内部自由活动的猫咪公寓,将猫咪的高密度自由生活与人类隔离,同时采用聚碳酸酯中空板和磨砂亚克力材料模糊不同空间的界限,人在客厅中可以看到来来往往的猫咪,猫通过半透明的材质也可以看到走来走去的主人。

▲内部环境一览©胡义杰

有一扇半透明的移门隐藏在猫之公寓中,这个移门作为宠物世界与人类世界的关键阀门。当闭上的时候,人类通道完全打开,同时公寓与猫咪的光之核心筒联系也被减弱,猫咪进入其中的概率大大减小(人类区域得到扩展,猫咪区域缩小),当打开时,将走廊区域完全划分为猫咪使用,同时猫之公寓的各个楼层均与光之核心筒相联系,在客厅的人可以无障碍的观察活动中的猫咪。(人类区域收缩,猫咪的活动区域扩展)。

▲ 半透明的移动门开启人类世界与宠物生活

宠物的空间

高密度宠物居住解决方案与普通的爱猫人士的散养有本质的区别。就如同迁徙到大城市的人类一样,二战后的人口大爆炸产生的高密度人口催生了新一代的建筑形式。最为著名的是1952年的马赛公寓,柯布西耶试图保留高密度人类居住环境的尊严,2018年的上海浦东,我们希望为40只建造一座猫咪马赛公寓,解决高密度环境系下猫咪的生活,活动,排泄和饮食活动。

▲ 猫咪的马赛公寓©胡义杰

整体公寓的总体布局采用了经典现代建筑的功能分区特点,将交通核,后勤区与居住区分开,同时垂直相连。各个楼层水平向串联互通,从居住单元通往后勤单元,再通往核心筒。主要的交通核由光之圆筒和垂直楼梯间两部分组成,当“阀门”关闭时,猫咪主要由垂直楼梯间上下,当“阀门”打开时,光之圆筒与猫之公寓完全联通,获得更多的攀爬与跳跃空间。同时“筒中的猫”也作为人类客厅的主要观景设施之一。

▲爬架路线

最靠近交通核的一格为猫咪的后勤空间,设计了特别定制的猫盒,通过一体集成的猫砂区域和饮食区域提供饮水及饮食服务。猫砂区通过抽屉抽拉提供便捷的换猫砂服务,水碗和粮碗被一体化的设计在同一盒子内,通过工厂统一生产。这个产品在今后也可以单独售卖,整体通过简易的6角螺丝组装而成,拆分打包后可以放入一个15cm的扁长包裹中,方便邮递与运输,这个单独的“猫盒”内区分了猫窝,猫砂和猫饭区域,为爱猫人士(尤其是养多个猫咪的猫奴)提供了一体化的解决方案。

▲内部自由活动的猫咪公寓

最后是猫咪的居住单元,通过半开穿孔的亚克力结合可以活动的猫盒子共同组成,通过盒边的小型边条形成的细部卡槽与活动穿孔翻板结合,防止猫咪擅自离开猫咪公寓,主人可以向外轻拉盒子,解锁翻板,打开单元格取出猫咪。

▲ 猫咪的居住单元通过盒边的小型边条形成的细部卡槽与活动穿孔翻板结合,防止猫咪擅自离开猫咪公寓©苏圣亮

▲猫咪居住©胡义杰

紫外线照射灯管设置在猫咪公寓的上方,可以提供杀菌消毒作用,同时在公寓顶部的末端设置了专用的排风扇,确保空气流通与新鲜。在走廊的尽头设置了猫饭专用厨房,与人类厨房分开,这里提供了完毕的冷热水,电磁炉,水槽等设施,可以进行专门的猫饭烹饪。

▲猫咪公寓顶部的末端设置了专用的排风扇确保空气流通与新鲜

猫之屋相对的是狗之屋,这里有转为狗狗准备的洗澡空间,烘干空间和吹毛空间。在猫屋与狗屋之间为“一米院”,为主卧室提供采光的同时,也在宠物与人类之间打开了一个通道。

▲专为狗狗准备的洗澡空间 ©胡义杰

▲ 在猫屋与狗屋之间为“一米院” ©苏圣亮

人类的空间

整体建筑空间如同动物柔软的身体曲线,通过不同层级的弧线组织空间。这些弧线的路径同时结合原有建筑的梁的走向,确保了所有建筑结构完整与安全性。同时弧线与拱券也致敬了柯布西耶的经典作品。

▲ 整体建筑空间通过不同层级的弧线组织©胡义杰

▲ ©苏圣亮

入口玄关顶部的设置有一个通长的圆拱,侧壁结合猫的尺度绘制了红蓝尺。客厅结合开放式厨房一体化设计,扩大了原有客厅的空间感受,通过内藏的三连移门可以将客厅与厨房灵活划分。

▲入口玄关顶部的设置有一个通长的圆拱,侧壁结合猫的尺度绘制了红蓝尺 ©苏圣亮

▲©胡义杰

通过明亮的色彩丰富小空间活跃度,同时使得空间更加明亮清晰。红黄蓝的3种颜色的搭配调和整体空间,引导人行流线。客厅主要配色为黄色与蓝色,通过黄色的丝带游走于天花上,强调整体弧线感觉。蓝色空间的墙面从卫生间延伸出来,插入客厅中。入户的墙面为红色,点亮整个客厅空间。卧室主要采用蓝色与黄色的配色,与成品的家具搭配。次卧室采用翻折床结合地台设计,提供了足够的储物空间的同时,提供更多的空间使用方式。结合飘窗设计了超大工作台面,提供了舒适的吃鸡环境。

▲ 红黄蓝的3种颜色的搭配调和整体空间引导人行流线 ©苏圣亮

光线的反射与穿透

半透明的材质除了模糊了不同功能空间边界的同时,也提供的光线的反射与穿透。在吊顶上采用了光导管,将室外光线引入室内,通过顶部的全反射不锈钢,将其反射到室内空间中去。同时走廊的墙面采用聚碳酸酯中空板与镜面结合的方式,将光线漫反射到室内,提高了全屋的照度。镜面同时也将猫咪公寓的一部分景色反射到客厅,可以在沙发上观察到公寓中猫咪的动向。

▲ 在吊顶上采用了光导管,将室外光线引入室内,通过顶部的全反射不锈钢,将其反射到室内空间中去

▲半透明的材质除了模糊了不同功能空间边界的同时也提供的光线的反射与穿透  ©胡义杰

其他暖心改造的细节

在妈妈房间到狗窝设置了秘密通道,可以让妈妈方便的到达狗屋,并在其中设置了双层门系统,隔绝噪音。在猫狗屋中设计了独有的保温排风扇系统,由最外层的防雨百叶,中间的排风扇和最内部的推拉窗共同组成,确保室内的保温同时提供通风的设计。同时地面采用仿地板瓷砖,下面为防水涂料层,有效杜绝老公房底层的潮湿问题。

▲ 两侧连通的猫咪公寓©苏圣亮

结语

在被不断压缩的人类生活,尤其在拥挤的都市中,生活总是要求人们去放弃一些很多东西,同时人们又被欲望驱使着,追寻着更大的房子,更高的收入和更攀比的朋友圈,转而形成了焦虑的日常。但是在这个设计里:“48平方米高密度人宠的优雅混居”,传达出这样一个态度:即无论在何种困境里,利用已有的资源,通过合理设计可以带来希望。

▲ 平面图

▲ 立面图

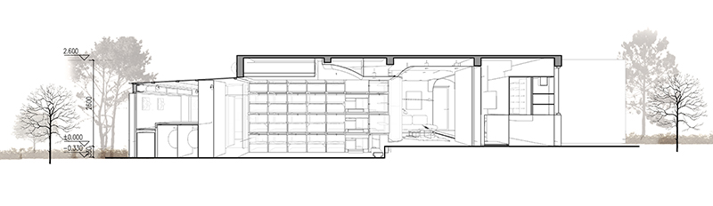
▲ 公寓剖面


业主:宁枫(母亲),胡忆宁(儿子)

设计单位:上海华都建筑规划设计有限公司

主创设计师:张海翱,徐航

结构设计:汪国勋(上海华都建筑与规划有限公司 结构所所长)

软装设计:刘琰(造作)

瓷砖设计:东鹏瓷砖

开关&LED灯:公牛装饰开关 公牛爱眼LED灯

装修工程:上海沪佳建筑装饰 丁国华(施工总负责),徐林(油漆工),邢陀明(电工),蒲昆伦(木工),何永元(泥工)

光导管提供及安装:苏州中节能索乐图日光科技有限公司、江苏心日源建筑节能科技股份有限公司

软装提供:造作 ZAOZUO, 刘琰、陈震、孙晋洲、黄玉莹

瓷砖洁具提供:东鹏瓷砖,东鹏洁具

猫盒制作:上海金容广告传媒有限公司

特别感谢:王赋,何颖,霍靖怡

宠物专家指导:段晓天

建筑摄影:苏圣亮,胡义杰,徐航

建筑动画:光辉城市

插画绘制:张小哈